Espace propriétaire
fr

Votre recherche

Vendu
Vichy (03200)

4 pièces - 79 m²

Appartement F4 avec terrasse et parking privé

Ref : 2064
A propos de ce bien

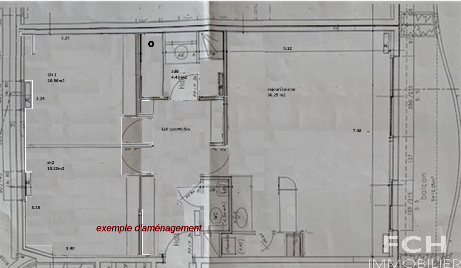
VENDU PAR NOS SOINS !! En plein cœur de Vichy, dans une résidence sécurisée de qualité, très bel appartement de 79 m² avec balcon-terrasse et parking privé en sous-sol. Usage résidentiel ou professionnel possible. Actuellement utilisé comme cabinet libéral comprenant : hall d’entrée avec rangement, 4 pièces, salle d’eau, WC, avec points d’eau dans toutes les pièces. On peut aisément le transformer en un appartement très agréable à vivre qui comprendrait une cuisine ouverte sur le séjour avec deux baies vitrées donnant sur la terrasse, deux chambres, salle d’eau, WC. Double vitrage, chaudière récente individuelle gaz, climatisation, volets roulants. Ascenseur. Parking sécurisé en sous-sol avec place numérotée. Charges courantes : 1160 €/an, résidence de 38 lots dont 8 appartements. Façade ravalée en 2022. DPE B.

Les informations sur les risques auxquels ce bien est exposé sont disponibles sur le site Géorisques https://www.georisques.gouv.fr


Les informations sur les risques auxquels ce bien est exposé sont disponibles sur le site Géorisques
Descriptif de ce bien
Général
Code postal 03200
Nombre de chambre(s) 2
Nombre de pièces 4
Nombre de niveaux 2
Détails
Nb de salle d'eau 1
Mode de chauffage Gaz de ville
Type de chauffage Chaudière
Format de chauffage Individuel
Interphone OUI
Terrasse OUI
Année de construction 1996
Quartier Quartier gare, Vichy centre ville
Composition
Rez de chaussée
Entrée 11.10 m²

Archives 3.11 m²

Salle 7.71 m²

Pièce 14.48 m²

Pièce 18.57 m²

Pièce 19.60 m²

Wc 1.40 m²

Salle d'eau 3.23 m²

Balcon 13.01 m²

Financier
Les honoraires d'agence seront intégralement à la charge du vendeur  
Charges 97 €
Taxe foncière annuelle 1 672 €
Energie
DPE GES
Autour du bien
  • Commerces et santé
  • Loisirs
  • Ecoles
  • Transports
  • Pratique
Contacter pour ce bien
L'agence
Téléphone 04 70 32 82 21
Adresse
1 Avenue Fernand Auberger 03700 Bellerive-sur-Allier

* Champ obligatoire

Les informations recueillies sur ce formulaire sont enregistrées dans un fichier informatisé par La Boite Immo agissant comme Sous-traitant du traitement pour la gestion de la clientèle/prospects de l'Agence / du Réseau qui reste Responsable du Traitement de vos Données personnelles. La base légale du traitement repose sur l'intérêt légitime de l'Agence / du Réseau. Elles sont conservées jusqu'à demande de suppression et sont destinées à l'Agence / au Réseau. Conformément à la loi « informatique et libertés », vous disposez des droits d’accès, de rectification, d’effacement, d’opposition, de limitation et de portabilité de vos données. Vous pouvez retirer votre consentement à tout moment en contactant directement l’Agence / Le Réseau. Consultez le site https://cnil.fr/fr pour plus d’informations sur vos droits. Si vous estimez, après avoir contacté l'Agence / le Réseau, que vos droits « Informatique et Libertés » ne sont pas respectés, vous pouvez adresser une réclamation à la CNIL. Nous vous informons de l’existence de la liste d'opposition au démarchage téléphonique « Bloctel », sur laquelle vous pouvez vous inscrire ici : https://www.bloctel.gouv.fr Dans le cadre de la protection des Données personnelles, nous vous invitons à ne pas inscrire de Données sensibles dans le champ de saisie libre.
Ce site est protégé par reCAPTCHA, les Politiques de Confidentialité et les Conditions d'Utilisation de Google s'appliquent.

Découvrir nos outils